Purchase Price £850k
Development costs £1.6 million
Build Time 18 months
GDV £4.5 million
Profit Price £2.05M
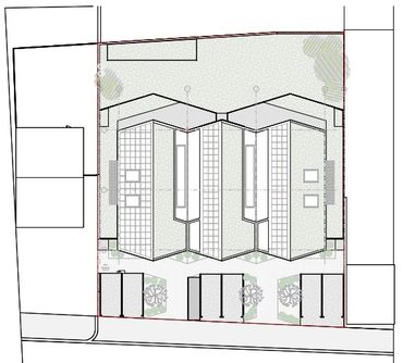
Redevelopment of site involving demolition of existing buildings and the erection of a 2-storey block of 9 self-contained flats, with rooms in roof space.



